Hochwertige Gewerberäume (Gastronomie, Büro o. Praxis) von privat zu verkaufen!

400.000,00 €
IDIG3240175
14.02.2021
00145
Keine Angabe Anbieter Webseite
Keine Angabe 49 16 ... anzeigen

Hochwertige Gewerberäume (Gastronomie, Büro o. Praxis) von privat zu verkaufen!

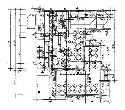
Das Objekt ca. 122qm, incl. anteilig der Terrassenfläche, befindet sich in Hamburg-Winterhude und in ist einer interessanten Lage, bestehend aus einem Mix aus Wohnungen und neu entstandenem gewerblichen Medienumfeld.
Es ist z.Z. ausgestattet als Gastronomieobjekt, mit allen dafür vorgesehenen Anschlüssen, jedoch jederzeit anderweitig nutzbar.
80,49qm Gastronomiefläche, Flur, Küche, Lagerraum
25,81qm Nebenräume, Flur, WC Damen, WC Herren, Personalraum, PersonalWC
57,52qm Terrasse
Im Keller befinden sich der Wasch-u. Trockenraum
Sonstiges
Es handelt sich um einen Immobilienverkauf, der Kaufreis beträgt VHB 395.000.00 €.
Dieses Objekt ist von Privat, ohne Provision und ist auch
Baujahr: 2021
Sehr gut für Anleger geeignet !
Weitere Gewerbeimmobilien Anzeigen
Minat Modul ist Hersteller von qualitativ hochwertigen Containern für den Gewerbebereich. Unsere Kernkompetenzen liegt vor allem im Gastronomiebereich: Trend - System - Erlebnis - Gastronomie
94032 Passau
13.02.2021
24.900,00 €
Kleinanzeige Passau Immobilien Gewerbe Gastronomie, Imbiss, Container, Imbisscontainer, Kebap
Ein laufender Hotel- und Gastronomiebetrieb in bestgelegener Lage in Balatonfüred, auf einem weiträumigen und ausbaufähigen Gebiet liegend. Ideal für Investoren interessiert an Hotel
94544 H - Balatonfüred
09.02.2021
2.800.000,00 €
Kleinanzeige H - Balatonfüred Immobilien Gewerbe Hotel, Gastronomieanlage mit Konferenz- und Erholung Bereich.
Gut laufender, voll eingerichteter Backshop mit deutschen Backwaren aus gesundheitlichen, familiären Gründen abzugeben. Hier kann man gemütlich frühstücken in relaxter Athmosphere auf Couch
79312 Emmendingen
07.02.2021
49.000,00 €
Kleinanzeige Emmendingen Immobilien Gewerbe Geschäft auf Lanzarote zu verkaufen

Häufig gestellte Fragen

Im Menü Anzeigenverwaltung, auf den Button Nachricht schreiben klicken
Im Menü Anzeigenverwaltung, auf den Button Zur Merkliste hinzufügen klicken
Im Menü Anzeigenverwaltung, auf den Button Anzeige löschen klicken
B
Privater Anbieter
Aktiv seit 14.02.2019
Zeit sparen
Zeit sparen

Anzeigenverteiler Multiposting

Anzeige nur einmal schalten und auf mehreren Anzeigenmärkten gleichzeitig veröffentlichen.

Anzeigenverwaltung Multimanage

Anzeigen mit nur einen Klick auf mehreren Anzeigenportalen gleichzeitig bearbeiten oder löschen.

Besucher Statistiken

Detallierte Statistikdaten über Besucher der Anzeigen.

Weitere Gewerbeimmobilien Anzeigen
Minat Modul ist Hersteller von qualitativ hochwertigen Containern für den Gewerbebereich. Unsere Kernkompetenzen liegt vor allem im Gastronomiebereich: Trend - System - Erlebnis - Gastronomie
94032 Passau
13.02.2021
24.900,00 €
Kleinanzeige Passau Immobilien Gewerbe Gastronomie, Imbiss, Container, Imbisscontainer, Kebap
Ein laufender Hotel- und Gastronomiebetrieb in bestgelegener Lage in Balatonfüred, auf einem weiträumigen und ausbaufähigen Gebiet liegend. Ideal für Investoren interessiert an Hotel
94544 H - Balatonfüred
09.02.2021
2.800.000,00 €
Kleinanzeige H - Balatonfüred Immobilien Gewerbe Hotel, Gastronomieanlage mit Konferenz- und Erholung Bereich.
Gut laufender, voll eingerichteter Backshop mit deutschen Backwaren aus gesundheitlichen, familiären Gründen abzugeben. Hier kann man gemütlich frühstücken in relaxter Athmosphere auf Couch
79312 Emmendingen
07.02.2021
49.000,00 €
Kleinanzeige Emmendingen Immobilien Gewerbe Geschäft auf Lanzarote zu verkaufen

Häufig gestellte Fragen

Im Menü Anzeigenverwaltung, auf den Button Nachricht schreiben klicken
Im Menü Anzeigenverwaltung, auf den Button Zur Merkliste hinzufügen klicken
Im Menü Anzeigenverwaltung, auf den Button Anzeige löschen klicken
Sucheinstellungen ändern